Ficha
Chalet de lujo con jardín para comprar en Anyós
La Massana (Anyós) - REF. 1568

1.140 m2

4

6

12
venta: 4.250.000 €
Descripción
Chalet para comprar en Anyós, La Massana en una tranquila y exclusiva zona residencial rodeada de naturaleza a pocos minutos en coche del centro de la parroquia.
La vivienda tiene una superficie aproximada de 1.140 m² sobre una parcela de 998 m² y su distribución es la siguiente:
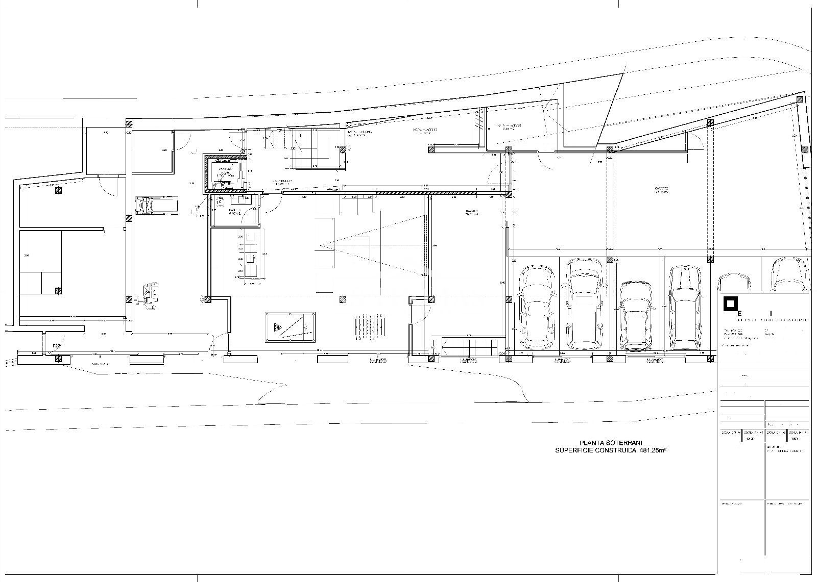
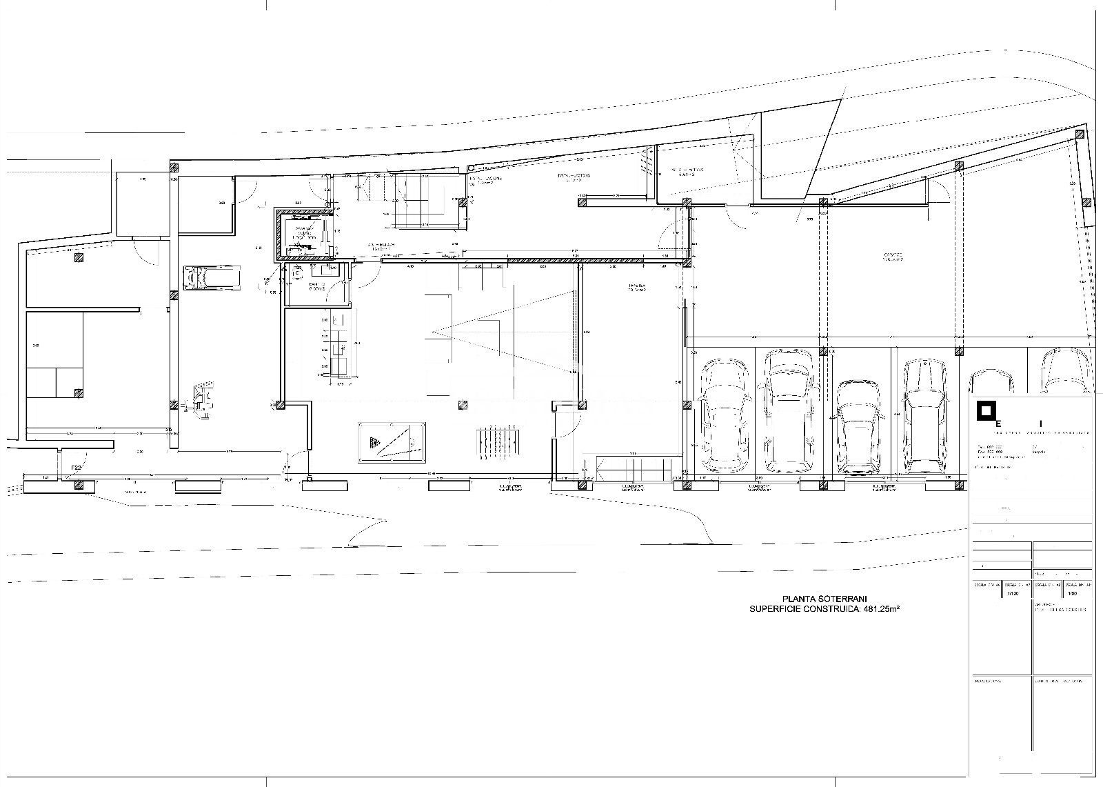
En la planta -1 encontramos una amplia bodega con unas condiciones naturales óptimas para el mantenimiento del vino y una zona destinada al trastero.
Por la planta baja tenemos el acceso a esta exclusiva propiedad donde vemos un amplio garaje con capacidad para más de 10 vehículos, un gimnasio equipado, una pre-instalación para la sauna, una sala de juegos, una sala polivalente, un aseo, una sala de estar equipada con home-cinema y una fabulosa zona de bar y salida al jardín exterior donde encontramos un jacuzzi. En esta zona también encontramos la sala de máquinas de la vivienda.
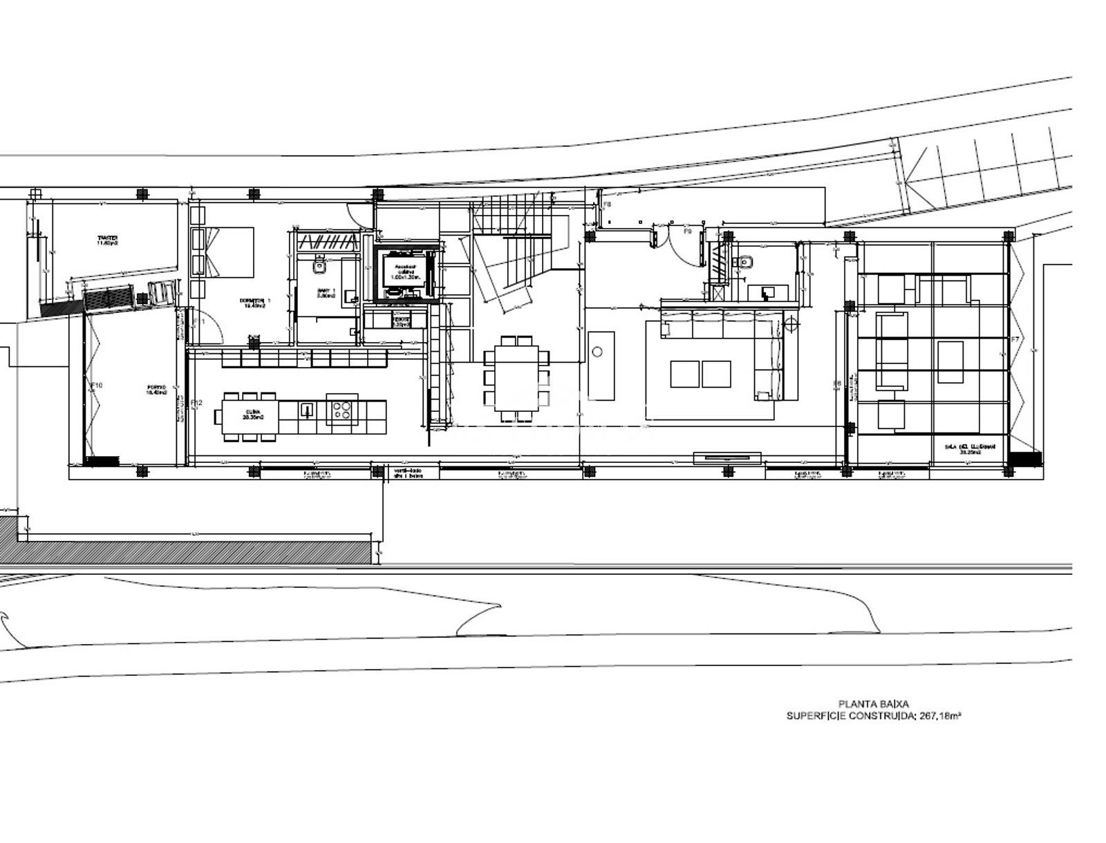
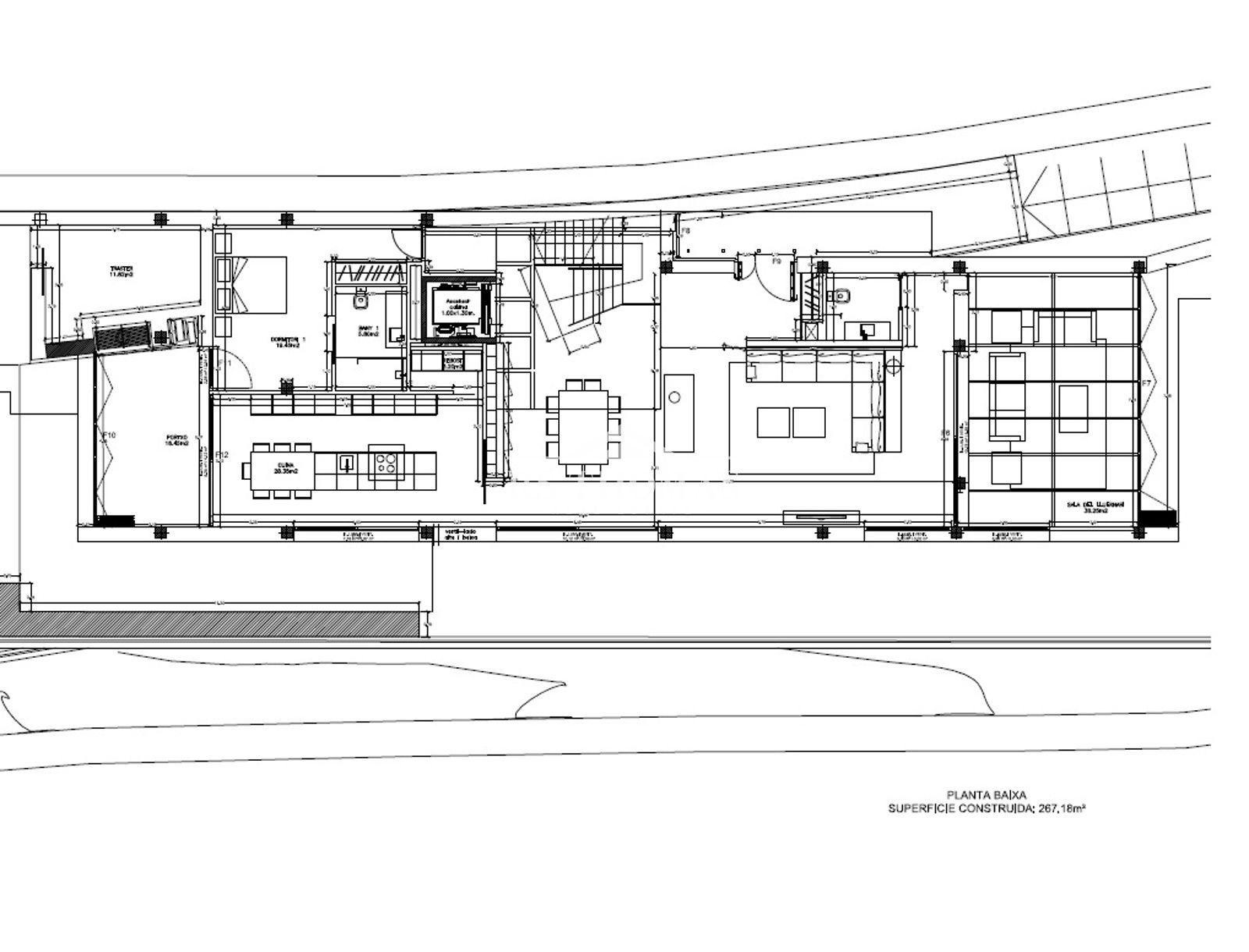
Accedemos a la primera planta destinada a la zona de día, en ella tenemos una amplia cocina independiente totalmente equipada con isla central, una salón-comedor con chimenea central y espacio para la leña. Esta zona se complementa con un dormitorio tipo suite con baño completo con ducha. Junto al comedor tenemos un fantástico porche cubierto con una bonita zona con sofás, que nos da acceso al jardín con unas magníficas vistas a la montaña, en esta planta tenemos una barbacoa y un espacio de almacenamiento.
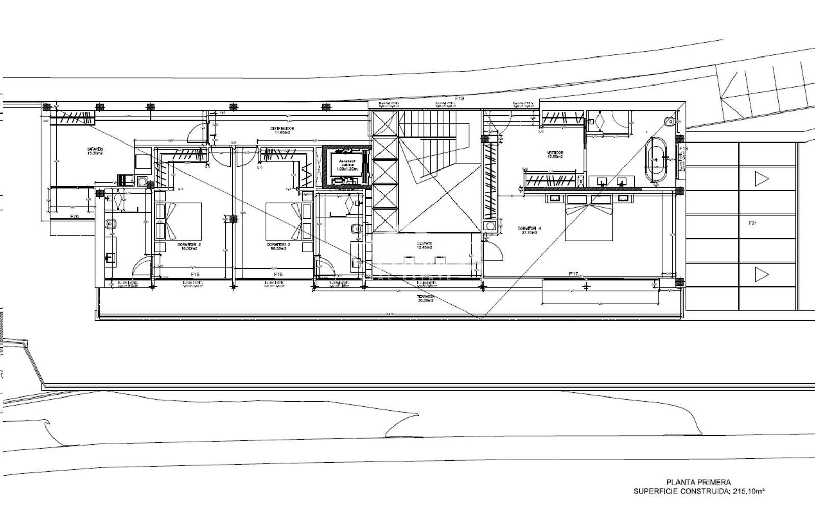
Finalmente, en la segunda planta, tenemos la zona de noche formada por tres dormitorios dobles en suite con armarios empotrados totalmente exteriores con salida directa a la terraza, uno de estos dormitorios es la máster suite con vestidor. Todas las estancias tienen baño completo con ducha y la máster suite también tiene bañera.
Toda la propiedad esta conectada por escaleras y un ascensor. La calefacción es de geotermia por suelo radiante.
Esta exclusiva vivienda está pensada hasta el más mínimo detalle, ofreciendo un lujo y confort en una cotizada zona del Principado para aquellos que busquen tranquilidad sin renunciar a estar cerca de los núcleos comerciales y financieros del país. 
Características
Precio Venta 4.250.000 €
Construidos 1.140 m2
Útiles 963,53 m2
Parcela 998 m2
Precio/m² 3.728
Dormitorios 4
Baños 6
Cocina Amueblada
Terraza
Ascensor
Garaje
Calificación Energética En trámite
Luz
Agua
Escalas de eficiencia



Contáctanos

Si deseas más información sobre esta propiedad, por favor, rellena el formulario.

 Sí, he leído y/o acepto las Condiciones de uso y la Política de privacidad
Inmuebles similares:
 
3.800.000 €
Ref. 1013  480 m2  5  5
Chalet Independiente en venta en La Massana, con 480 m2, 5 habitaciones y 5 baños, 2 plazas de Garaje, Trastero y Calefacción Gasoil.